產品概述
100X遙控浮球閥是利用控制回路中浮球升降來控制主閥的開啟和關閉,達到自動控制設定液位的閥門,是具有多種功能的水力操作式閥門。能有效的控制水塔或水箱液面,適合接通或截斷管道中的流體。液位控制準確,水位不受壓力波動的干擾,啟閉靈活,密封可靠、使用壽命長,維護保養簡單。適用于高層建筑中的水箱、水池、水塔的自動供水系統。
產品特點
1、遙控浮球閥由主閥、球閥、浮球閥等組成水力控制系統,調定后,自動控制液面高度。直接利用液面控制,不需要其他裝置和能源,保養簡便,液面控制準確度高,不受水壓影響,密封可靠。
2、遙控浮球閥當管道從進水端給水時,由于球閥、浮球閥是常開的,水用過針閥、控制室、球閥、浮球閥進入水池,由此控制室不形成壓力,主閥開啟,水塔供水。
3、當水塔的水面上升至設定高度時,浮球閥浮起關閉浮球閥,控制室內水壓升高,推動主閥關閉,供水停止。當水面下降時,浮球閥重新開啟,控制室水壓下降,主閥再次開啟繼續供水,保持液面的設定高度。

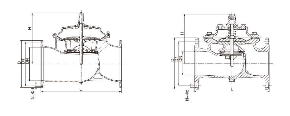
主要外形連接尺寸
| DN | L | H | D | D1 | N-Φd | |||||||||
| PN10 | PN16 | PN25 | PN40 | PN10 | PN16 | PN25 | PN40 | PN10 | PN16 | PN25 | PN40 | |||
| 50 | 241 | 139 | 165 | 165 | 165 | 165 | 125 | 125 | 125 | 125 | 4-Φ19 | 4-Φ19 | 4-Φ19 | 4-Φ19 |
| 65 | 234 | 159 | 185 | 185 | 185 | 185 | 145 | 145 | 145 | 145 | 8-Φ19 | 8-Φ19 | 8-Φ19 | 8-Φ19 |
| 80 | 280 | 179 | 200 | 200 | 200 | 200 | 160 | 160 | 160 | 160 | 8-Φ19 | 8-Φ19 | 8-Φ19 | 8-Φ19 |
| 100 | 360 | 214 | 220 | 220 | 235 | 235 | 180 | 180 | 190 | 190 | 8-Φ19 | 8-Φ19 | 8-Φ23 | 8-Φ23 |
| 125 | 430 | 275 | 250 | 250 | 270 | 270 | 210 | 210 | 220 | 220 | 8-Φ19 | 8-Φ19 | 8-Φ28 | 8-Φ28 |
| 150 | 455 | 333 | 285 | 285 | 300 | 300 | 240 | 240 | 250 | 250 | 8-Φ23 | 8-Φ23 | 8-Φ28 | 8-Φ28 |
| 200 | 585 | 407 | 340 | 340 | 360 | 375 | 295 | 295 | 310 | 320 | 8-Φ23 | 12-Φ23 | 12-Φ28 | 12-Φ31 |
| 250 | 790 | 476 | 395 | 405 | 425 | – | 350 | 355 | 370 | – | 12-Φ23 | 12-Φ28 | 12-Φ31 | – |
| 300 | 900 | 526 | 445 | 460 | 485 | – | 400 | 410 | 430 | – | 12-Φ23 | 12-Φ28 | 16-Φ31 | – |
| 350 | 900 | 580 | 505 | 520 | 555 | – | 460 | 470 | 490 | – | 16-Φ23 | 16-Φ28 | 16-Φ34 | – |
主要外形連接尺寸
| DN | L | H | D | D1 | N-Φd | |||
| PN10 | PN16 | PN10 | PN16 | PN10 | PN16 | |||
| 400 | 962 | 670 | 565 | 580 | 515 | 525 | 16-Φ28 | 16-Φ31 |
| 500 | 1076 | 790 | 670 | 715 | 620 | 650 | 20-Φ28 | 20-Φ34 |
| 600 | 1232 | 930 | 780 | 840 | 725 | 770 | 20-Φ31 | 20-Φ37 |
注:本表中法蘭尺寸按GB/T 17241.6-2008標準,結構長度按CJ/T 219-2017標準。